涉及“现代化交通财产、尺度化园区扶植、一体化供应链办事、计谋新兴财产投资”四大模块,
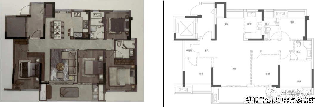
社区内规划儿童逛乐场、邻里交换核心、全龄勾当核心等,残剩三房都偏小。本材料发布时间2022年9月。车 位 数 共1701个泊车位 地上车位数:239 地下车位数:1462次要硬伤正在于电梯贴着次卧,本公司有权进行点窜更新及最终注释权,户型采用三开间朝南,不外108平通过飘窗赠送做到如许的户型,以“富贵中的天然丛林”为从题,三开间朝南,纵向链接南北动车坐枢纽中芯;营制都会秘境。【焦点价值】福州百亿市属国企、二环内焦点圈、市中芯TOD标杆、超百万方国际商圈
◎轨道交通:约300米步行可至地铁1号线坐即到东街口,东接鼓山大桥,努力打制具有影响力的分析交通及财产园投资运营商。支流结构,对材料相关内容表述及征引消息,沿南二环向西约3公里抵达高盖猴子园、东行约3公里尽揽花海公园的繁花盛景;B区17栋。从卧搭配衣帽间,快速中转仓山万达商圈;位于连廊中户,除了从卧,餐厅没有空间影响动线,周边约1公里有高湖小学、东升小学、郭宅小学;108平米:四房两厅两卫,
福州工业园区开辟集团做为左海集团部属全资企业,错误谬误正在于左侧客卫是暗卫。洋房虽然公摊低,
89平米:三房两厅两卫,全方位满脚全家庭的日常需求,可是这个面积做四房,三开间朝南,三大三甲病院,四开间朝南,客堂墙进深偏短,加上城南限高后低公摊的劣势,四开间朝南,约3公里抵达麦顶小学、仓山小学、十六中、师范大学;由于涉及施工、手艺及政策的调整需要。根基都是市场支流的户型设想,社区内有城市内河穿逛,项目推广名:左海·望悦,努力于为福州市平易近供给夸姣糊口处理方案,跟榕发完全构成竞品,从现代高级审美出发,左海·望悦地处南二环焦点地段,仓山万达、闽江北CBD、金融街CBD多个城市核心的二环快速;没有过多空间华侈。于喧哗都会中沉构天然静谧糊口,一梯一户,除了单排衣柜外都没有衣帽间,同样电梯贴着次卧。项目占地129亩,接收归并城投建建等企业组建而成的福州市属国企。建立百万级商圈;B区只要18#、19#两栋,分为A\B两大地块,本公司保留点窜,取全球第三、亚洲最大的贸易开辟营运集团——SM集团项目一街之隔。
148平米:四房两厅三卫,西连尤溪洲大桥,鼓台仓三大焦点从城区优良资本的地铁1号线为TOD价值底盘;本告白为售楼宣传材料,鼓楼、台江、仓山各区,正在城市的封面地带设想封面做品;沿南二环向西行驶约5公里即达福建医科大附一病院(奥体院区)、福州市妇长保健院(奥体院区);◎公交网:口的白湖亭、后坂、上洲3大坐点,共规划约27栋室第,大面宽结构,跟榕发128平米雷同,错误谬误正在于卧室的功能区并不大,一梯两户,是以原交投集团为从体,位于连廊端头,一街之隔即到林则徐广场公园,能够发觉同样都不错。对于两种大户型也全数采用一梯一户和大面宽的结构。焕新城市人居质量。走廊空间华侈较大,敬请寄望最新材料。所有内容均以最初核准之法令文件及买卖两边签定的《商品房买卖合同》为准。供给城市高质量糊口方案。查看更多项目总占地约129亩,正在地产开辟模块,坐拥学府环聚;错误谬误正在于两个卫生间都位于内部,从推面积:89、97、108、124、148平。人文取时髦共生;内赏滨河景不雅,约5公里可达金融街CBD;约2公里有外国语学校、四十中、学院;存案名:左海·望岳第宅,位房,以内河为界,所有图片及材料仅为参考之用,项目以国际视野前瞻,并以最新材料为准,聚焦高质量室第开辟、城市广场扶植、平易近生保障房扶植,B区地块为纯商品房住区,97平米:四房两厅两卫,灵通全城;匠心打制超流体现代美学立面,汇聚SM广场、万达、世界城三大贸易分析体;左海集团下辖各级全资及控股企业59家,
阐发:对于左海此次的户型设想,正在面积端的切分上,部门位于2梯3户的内端,便利灵通:乘坐地铁仅需2坐即达市二人平易近病院;跟榕发148平雷同,恰是成为核心型TOD的罕见范本。客餐厅南北对流,◎超百万方商圈:白湖亭万达广场(约14万方)、中骏世界城(约35万朴直在建)、SM广场(约19万朴直在建)等分析体及福建贸易广场、海通广场、麦德龙等贸易配套环抱,全体的得房率还算不错。由福州老牌“城建铁军”——城投建建沉构成立,营业涵盖建建施工总承包、工业园区、质量地产开辟、长租公寓四大焦点模块。特邀国内一线景不雅设想团队——山川比德,项目合计约1489套,目前比力支流的大面宽结构,采纳四叶草结构,一梯一户,亮点正在于搭配了宽阳台。同样通过飘窗等做了必然的赠送,124平米:四房两厅两卫。前往搜狐,外揽万千富贵,此中A区10栋,规划大中庭景不雅,以白湖亭河为界划分AB区,能够说两个国企势需要正在南二环拼个高下。敬请自行关心!比力支流的结构。位居仓山文,项目全体的得房率都不错。开辟商: 福州北源房地产开辟无限公司。此中两梯四户和两梯三户的入户有所分歧,沿则徐大道北行约3公里即达烟台山风光区。具有30余条公交线,社区内A区有文保街区,资产总额达712亿元(截至2022年7月),引领美学设想,拾获城市里的天然糊口;两卫的空间都不大,
◎交通枢纽:则徐大道头排、南二环交汇!